Комплекс
ID: 550475
Продажа
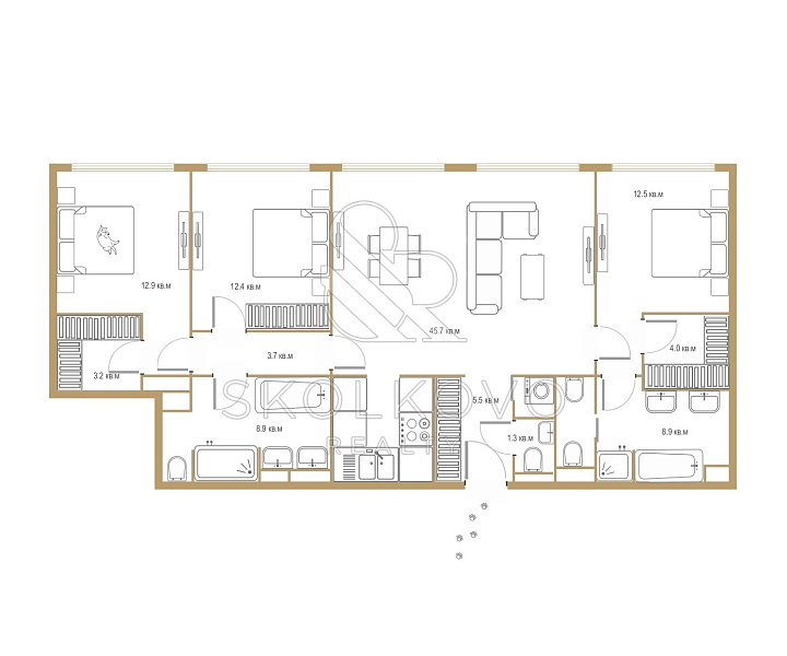
4-х комнатная квартира площадью 115 кв.м.
Квартира
115м²
комнат 4
11 этаж
113 000 000 руб.
-
₽
-
$
-
€
982 609
руб./ м²
-
Описание
id: 550475 Элегантная семейная квартира в премиальном жилом комплексе на севере Москвы.
Предлагаем вашему вниманию просторную 4-комнатную квартиру в одном из самых известных премиальных комплексов северной столицы.
Этот жилой объект идеально подходит для комфортной жизни, соединяя в себе элегантность, уют и современные технологии.
Квартира сдается с высококачественной отделкой, которая предоставляет вам возможность создать уникальную обстановку, стилизовав пространство на свой вкус.
Чистота и тишина гарантированы благодаря тому, что корпус находится вдали от шумных магистралей. Откройте окна и насладитесь свежим воздухом, даже в самый жаркий день: северо-восточные панорамные окна пропускают солнечный свет, не создавая теплицы.
На комфортном одиннадцатом этаже расположена выверенная планировка, включающая:
Просторную кухню-гостиную с зонированием на столовую и лаунж, что создает уютное пространство для отдыха и встреч с друзьями.
Мастер-блок с отдельной ванной и гардеробной, отдаленной от двух детских комнат, также оборудованных собственными ванными и гардеробами, обеспечивая максимальную приватность для всей семьи.
Инфраструктура и дополнительные удобства
Скоро в соседней башне откроется новый фитнес-клуб с бассейном, что станет отличным дополнением к уже имеющейся инфраструктуре.
На территории комплекса создан уединенный закрытый двор, который напоминает приватный парк, с тенистыми аллеями и крупномерными деревьями.
Prime Park — это исключительное место для жизни в Москве.
В комплексе находятся девять корпусов с презентабельной входной группой, службой консьержей и всевозможными удобствами: фонтанами, детскими игровыми площадками и ландшафтным парком.
Прямая продажа: без лишних бюрократических проволочек.
Быстрый выход на сделку: мы стремимся сделать процесс максимально удобным и оперативным для вас.
Инфраструктура и транспорт
Квартал располагает собственной инфраструктурой: два детских сада, школа, фитнес-клуб с бассейном и супермаркет. В шаговой доступности находятся медицинские учреждения, крупнейший ТРЦ Авиапарк и другие культурные объекты.
Благодаря близости к станциям метро Динамо, Аэропорт, ЦСКА и Петровский Парк, вы без труда доберетесь до центра города всего за 9 минут, а до Москва-Сити — за 20 минут.
Не упустите возможность стать владельцем этой уникальной квартиры в Prime Park!
Звоните, и мы организуем для вас показ!
Предлагаем вашему вниманию просторную 4-комнатную квартиру в одном из самых известных премиальных комплексов северной столицы.
Этот жилой объект идеально подходит для комфортной жизни, соединяя в себе элегантность, уют и современные технологии.
Квартира сдается с высококачественной отделкой, которая предоставляет вам возможность создать уникальную обстановку, стилизовав пространство на свой вкус.
Чистота и тишина гарантированы благодаря тому, что корпус находится вдали от шумных магистралей. Откройте окна и насладитесь свежим воздухом, даже в самый жаркий день: северо-восточные панорамные окна пропускают солнечный свет, не создавая теплицы.
На комфортном одиннадцатом этаже расположена выверенная планировка, включающая:
Просторную кухню-гостиную с зонированием на столовую и лаунж, что создает уютное пространство для отдыха и встреч с друзьями.
Мастер-блок с отдельной ванной и гардеробной, отдаленной от двух детских комнат, также оборудованных собственными ванными и гардеробами, обеспечивая максимальную приватность для всей семьи.
Инфраструктура и дополнительные удобства
Скоро в соседней башне откроется новый фитнес-клуб с бассейном, что станет отличным дополнением к уже имеющейся инфраструктуре.
На территории комплекса создан уединенный закрытый двор, который напоминает приватный парк, с тенистыми аллеями и крупномерными деревьями.
Prime Park — это исключительное место для жизни в Москве.
В комплексе находятся девять корпусов с презентабельной входной группой, службой консьержей и всевозможными удобствами: фонтанами, детскими игровыми площадками и ландшафтным парком.
Прямая продажа: без лишних бюрократических проволочек.
Быстрый выход на сделку: мы стремимся сделать процесс максимально удобным и оперативным для вас.
Инфраструктура и транспорт
Квартал располагает собственной инфраструктурой: два детских сада, школа, фитнес-клуб с бассейном и супермаркет. В шаговой доступности находятся медицинские учреждения, крупнейший ТРЦ Авиапарк и другие культурные объекты.
Благодаря близости к станциям метро Динамо, Аэропорт, ЦСКА и Петровский Парк, вы без труда доберетесь до центра города всего за 9 минут, а до Москва-Сити — за 20 минут.
Не упустите возможность стать владельцем этой уникальной квартиры в Prime Park!
Звоните, и мы организуем для вас показ!
Скачать презентацию
Прайм Парк (Prime Park)
Виды, пляжи, расположение и многое другое
Местоположение
«Прайм Парк» расположен в Хорошевском районе, одном из самых развитых с точки зрения инфраструктуры. Здесь расположены крупнейшие ТЦ и ТРЦ, спортивные комплексы, образовательные заведения для дошкольников и школьников, университеты. ЖК окружен 4 парками с хорошо развитой инфраструктурой развлечений и спорта.
Рядом Ленинградский проспект, по которому можно добраться в любую точку столицы. В пешей доступности несколько станций метро: ЦСКА и «Аэропорт» (12 мин), «Петровский Парк» и «Динамо» (15 мин).
Спасибо!
Ваша заявка отправленаБанковские реквизиты
-
Название
ООО «Сколково-недвижимость»
-
Адрес
г. Москва, Пресненская набережная, дом 12, Башня Федерация, этаж 16
-
ИНН
7703735234
-
КПП
770301001
-
Банк
ПАО Сбербанк России, г. Москва
-
Р/сч
40702810238260015798
-
БИК
044525225
-
Банк
Главное управление Центрального банка Российской Федерации по Центральному федеральному округу г. Москва (ГУ Банка России по ЦФО)
-
К/сч
30101810400000000225