Комплекс
ID: 551201
Продажа
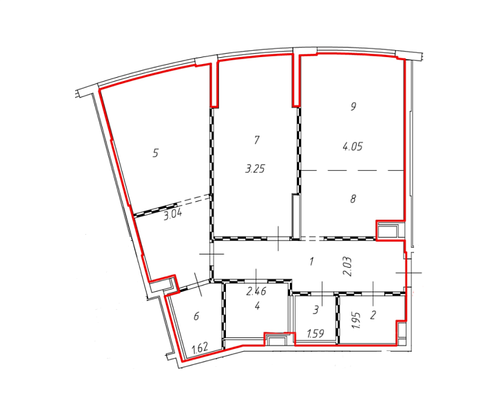
3-х комнатная квартира площадью 110,4 кв.м.
Квартира
110,4м²
комнат 3
19 этаж
71 500 000 руб.
-
₽
-
$
-
€
650 000
руб./ м²
-
Описание
id: 551201 Продается уютная трёхкомнатная квартира на Речном вокзале.
Предлагаем вашему вниманию стильную и уютную трёхкомнатную квартиру в жилом комплексе, расположенном на 19 этаже нового 20-этажного дома, построенного в 2023 году.
Общая площадь квартиры составляет 110.40 м², что обеспечивает достаточно пространства для комфортной жизни.
Квартира сочетает в себе эстетику и функциональность:
Просторная кухня-гостиная площадью 18 м² становится центром семьи, идеально подходя для встреч с друзьями и семейных ужинов.
Две изолированные спальни, включая мастер-блок с собственной ванной комнатой и гардеробной.
Большая прачечная комната и комфортный санитарный узел.
Просторная прихожая с продуманными системами хранения.
Интерьер квартиры выполнен в современной элегантной стилистике с использованием высококачественных материалов и продуманного освещения, что подчеркивает все достоинства жилья.
Квартира полностью укомплектована мебелью и техникой премиального уровня, обеспечивая возможность незамедлительного заселения без дополнительных вложений.
Расположение на высоком этаже открывает великолепные панорамные виды на Москву, наполняя пространство светом благодаря большому количеству окон.
Установлена централизованная система кондиционирования, обеспечивающая комфорт в любое время года.
Комплекс создает ощущение закрытого клубного пространства у воды.
Его благоустроенная территория с прямым выходом на набережную протяженностью около 700 метров идеально подходит для прогулок, пробежек и отдыха на свежем воздухе.
Для резидентов предусмотрены:
Современные детские и спортивные площадки.
Пространства для выгула собак.
Стильные входные группы с зонами ожидания и круглосуточный консьерж-сервис.
На территории комплекса расположены кафе, сервисы и торговые галереи, формирующие комфортную и удобную среду для жизни.
Расположение квартиры позволяет легко добираться до учебных заведений, включая школу №158 и дошкольное отделение №5.
В непосредственной близости находятся Парк Северного речного вокзала и Захарковский залив, предоставляющие возможности для прогулок и активного отдыха.
Комплекс находится в окружении зеленых зон, парков и благоустроенных пляжей, что делает его особенно привлекательным для жизни семей с детьми и молодых профессионалов.
Удобная транспортная доступность и быстрый выезд на основные магистрали города делают эту локацию одинаково интересной как для проживания, так и для инвестиций.
Не упустите возможность стать владельцем этой прекрасной квартиры в самом сердце города! Звоните прямо сейчас и запишитесь на просмотр. Это пространство, в которое легко влюбиться с первого взгляда!
ЗВОНИТЕ! НА СВЯЗИ 24/7
Есть презентации в pdf на русском или английском для партнеров.
Онлайн и офлайн-показы.
We speak English. Please do not hesitate to contact us if you have any questions.
Предлагаем вашему вниманию стильную и уютную трёхкомнатную квартиру в жилом комплексе, расположенном на 19 этаже нового 20-этажного дома, построенного в 2023 году.
Общая площадь квартиры составляет 110.40 м², что обеспечивает достаточно пространства для комфортной жизни.
Квартира сочетает в себе эстетику и функциональность:
Просторная кухня-гостиная площадью 18 м² становится центром семьи, идеально подходя для встреч с друзьями и семейных ужинов.
Две изолированные спальни, включая мастер-блок с собственной ванной комнатой и гардеробной.
Большая прачечная комната и комфортный санитарный узел.
Просторная прихожая с продуманными системами хранения.
Интерьер квартиры выполнен в современной элегантной стилистике с использованием высококачественных материалов и продуманного освещения, что подчеркивает все достоинства жилья.
Квартира полностью укомплектована мебелью и техникой премиального уровня, обеспечивая возможность незамедлительного заселения без дополнительных вложений.
Расположение на высоком этаже открывает великолепные панорамные виды на Москву, наполняя пространство светом благодаря большому количеству окон.
Установлена централизованная система кондиционирования, обеспечивающая комфорт в любое время года.
Комплекс создает ощущение закрытого клубного пространства у воды.
Его благоустроенная территория с прямым выходом на набережную протяженностью около 700 метров идеально подходит для прогулок, пробежек и отдыха на свежем воздухе.
Для резидентов предусмотрены:
Современные детские и спортивные площадки.
Пространства для выгула собак.
Стильные входные группы с зонами ожидания и круглосуточный консьерж-сервис.
На территории комплекса расположены кафе, сервисы и торговые галереи, формирующие комфортную и удобную среду для жизни.
Расположение квартиры позволяет легко добираться до учебных заведений, включая школу №158 и дошкольное отделение №5.
В непосредственной близости находятся Парк Северного речного вокзала и Захарковский залив, предоставляющие возможности для прогулок и активного отдыха.
Комплекс находится в окружении зеленых зон, парков и благоустроенных пляжей, что делает его особенно привлекательным для жизни семей с детьми и молодых профессионалов.
Удобная транспортная доступность и быстрый выезд на основные магистрали города делают эту локацию одинаково интересной как для проживания, так и для инвестиций.
Не упустите возможность стать владельцем этой прекрасной квартиры в самом сердце города! Звоните прямо сейчас и запишитесь на просмотр. Это пространство, в которое легко влюбиться с первого взгляда!
ЗВОНИТЕ! НА СВЯЗИ 24/7
Есть презентации в pdf на русском или английском для партнеров.
Онлайн и офлайн-показы.
We speak English. Please do not hesitate to contact us if you have any questions.
Скачать презентацию
Aquatoria (Акватория)
Виды, пляжи, расположение и многое другое
Спасибо!
Ваша заявка отправленаБанковские реквизиты
-
Название
ООО «Сколково-недвижимость»
-
Адрес
г. Москва, Пресненская набережная, дом 12, Башня Федерация, этаж 16
-
ИНН
7703735234
-
КПП
770301001
-
Банк
ПАО Сбербанк России, г. Москва
-
Р/сч
40702810238260015798
-
БИК
044525225
-
Банк
Главное управление Центрального банка Российской Федерации по Центральному федеральному округу г. Москва (ГУ Банка России по ЦФО)
-
К/сч
30101810400000000225